卫浴多场景解决方案
明星系列
畅销榜单
产品一览
恒洁服务
产品购买
关于恒洁
加入我们
EN
在线客服
网点查询
关注微信
关注微博
R9智能一体机
R8智能一体机
N8系列智能一体机
卫生区
智能一体机
智能盖板
坐便器
盥洗区
浴室柜
多功能镜
面盆
欧洲杯第五日预测
淋浴区
欧洲杯预测最新西班牙
淋浴龙头
淋浴房
浴缸
浴缸龙头
浴室小五金
五金挂件
五金配件
厨房阳台
水槽
厨房龙头
阳台柜
拖把池
阳台五金
商用产品
商用电子类
商用五金
商用便器
商用扶手/辅助类
恒洁服务1350
恒洁焕新闪装
服务政策
恒洁百科
坑距地图
线下门店
广东恒洁卫浴有限公司
官方旗舰店
广东恒洁卫浴有限公司
官方旗舰店
恒洁京东
自营旗舰店
线上授权门店
首页
产品一览
商用便器
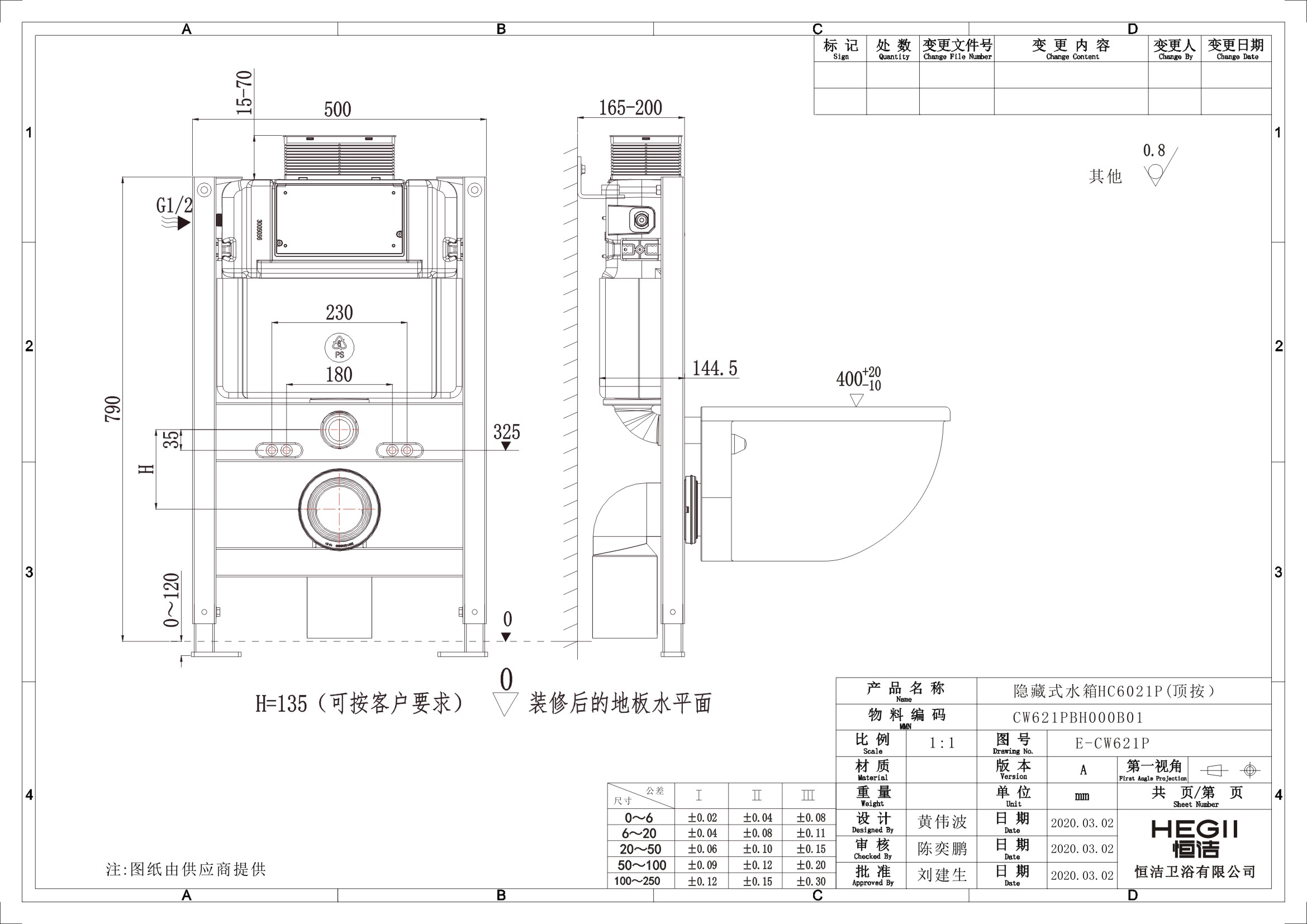
HC6021P
32
人气
对比
下载
HC6021P 隐藏式水箱
隐藏式水箱,美观大方 PP材料,坚固耐用 节省空间 畅享舒适 检修方便,轻松维护
产品参数
类型:隐藏式水箱
尺寸:500x144.5x790mm
冲水量:4.2/6L
要求水压:0.14Mpa-0.55Mpa
搭配推荐:HC6021P
产品亮点
合理利用空间,打扫更方便
一次成型无焊接,高强度水箱不渗漏
支架高度强,承重400KG,防腐处理,防锈耐用
外部EPS泡沫隔离板,防止凝露,降低噪音
面板安装口是水箱检修口,方便维护
产品明细
水箱:1套
连接管:1套
螺丝包:1套
面板固定盖:1套
衬垫:1套
堵头:1套
购买方式:
开始对比
隐藏对比栏
产品对比
×
{name}
{model}
;
map